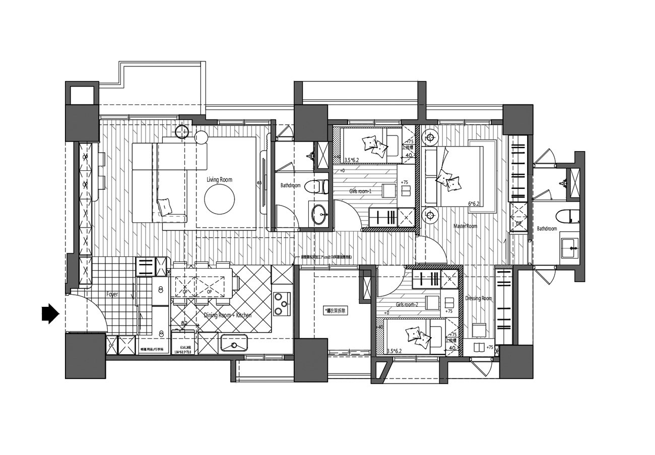
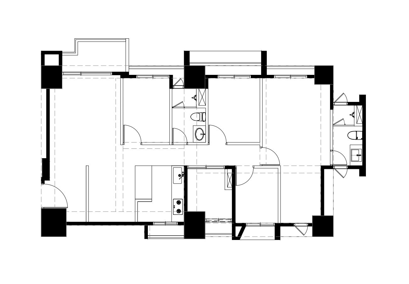
東區陳宅 Chen living Type | Residential Built-up Size | 216m² / 65P Location | Taipei, Taiwan Photography | MD Motivo 一樣住在台中東區,依舊選擇這區新居。新東區的生活圈。Outdoor的一家人,喜好戶外活動。旅遊 露營 爬山 享受大自然。打開公空間 讓家人回到家而不是在臥室。共處 相聚 相處 這才是家的定義。Trouble – 露營用品儲放 . 活動家具形式 Floor Plan - Before & After next project Forest bird_森之鳥