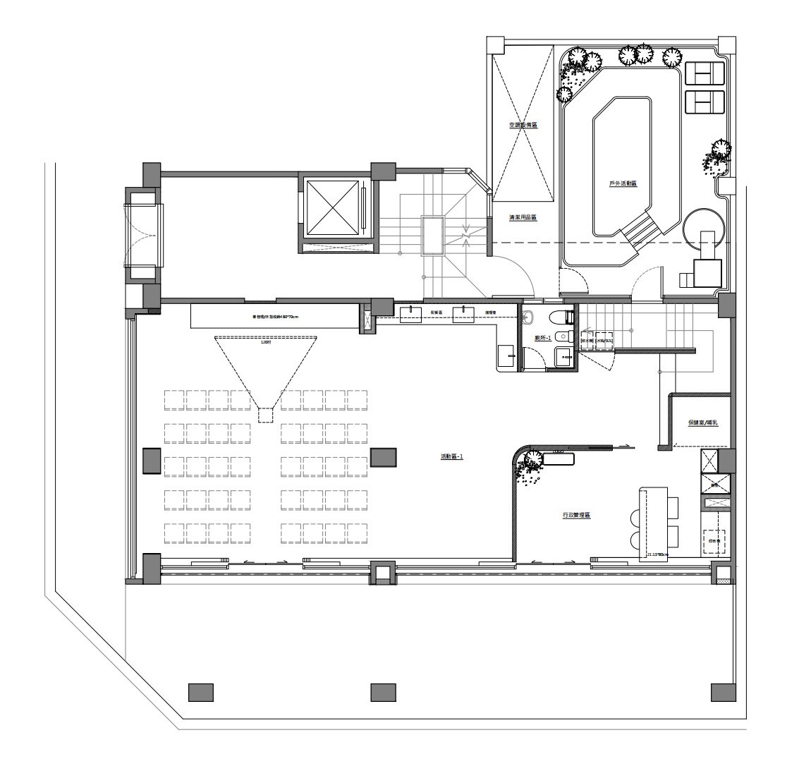
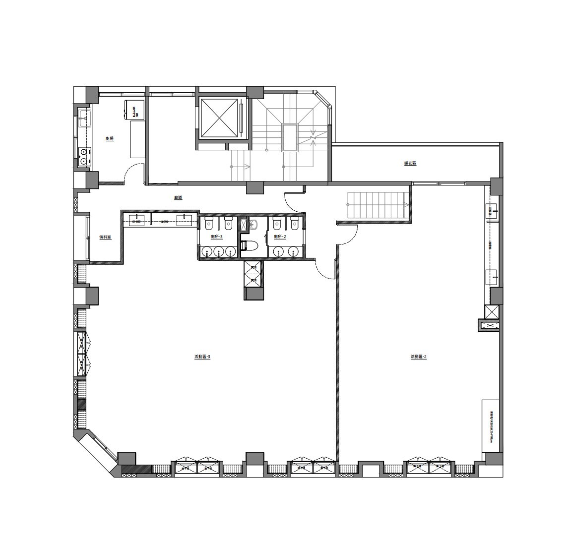
晟果托嬰中心 CHENG GUODAY CARE Type | Residential Built-up Size | 216m² / 65P Location | Taipei, Taiwan Photography | MD Motivo 主理人給予每個小寶貝的話因為相信 所以看見因為相信,我們更想瞭解藏在孩子內在的生命動力因為相信,我們更需要陪伴孩子探索生命的無限可能因為相信 ,我們看見最亮的光芒在孩子眼中閃耀 Trouble – 鮮明乾淨顏色 . 多點圓潤表現 . 相關法規 Floor Plan - 1F & 2F next project Lin H._西區林宅