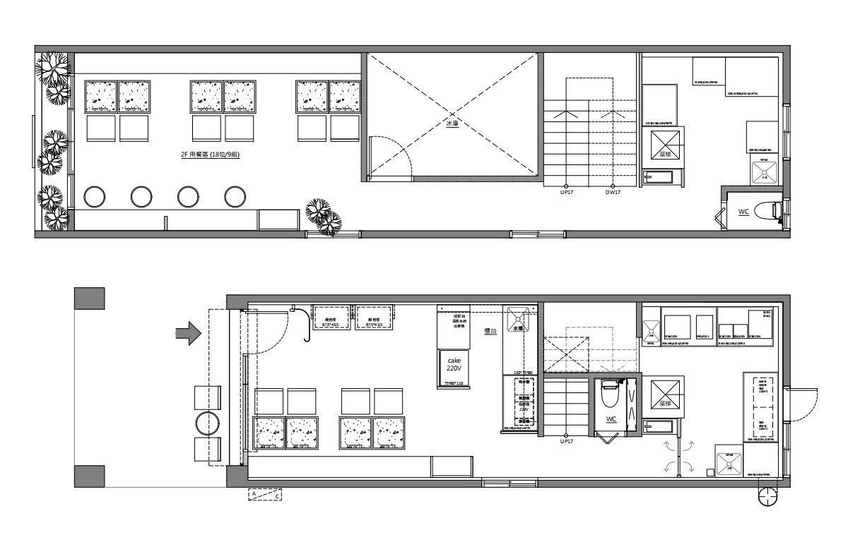
NUKA bakery restaurant Type | Residential Built-up Size | 216m² / 65P Location | Taipei, Taiwan Photography | MD Motivo 位於台中美村路上 幾十年老屋翻新原為診所格局空間 變更為餐廳使用年老失修 各項管線及結構需解決三位七年級北標青年 共同帶著幾十年的經驗及手藝共創NUKA 分享及回饋給台中家鄉Trouble – 管線格局 動線及內場設定 Floor Plan next project Yang H._北屯楊宅