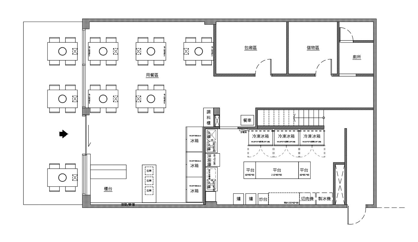
大吉籤串串火鍋 Spicy hot pot Type | Residential Built-up Size | 216m² / 65P Location | Taipei, Taiwan Photography | MD Motivo 店家給予在地鄰居的期許延續原有「美味爽快 便利快速」的核心精神深耕台式麻辣美食文化 。以嶄新的餐飮形式與環境提升串串體驗。串串不僅是食物 它象徵著簡單卻精緻的快樂。設計只是配角 人與人之間相聚才是最重要的 一環。 Trouble – 充滿熱潮的環境 廣告輸出加分演繹 Floor Plan - Before & After next project U-LOVE_優樂芙托嬰中心