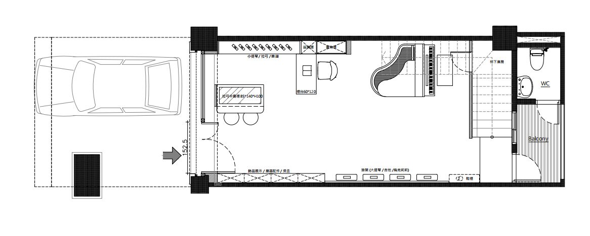
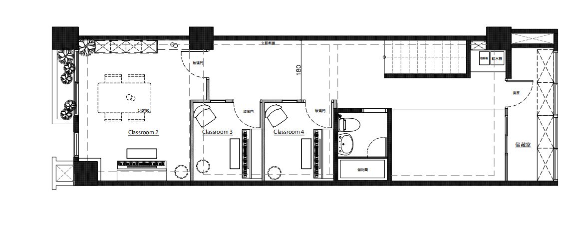
小齊音樂 Andy’s Music Type | Residential Built-up Size | 216m² / 65P Location | Taipei, Taiwan Photography | MD Motivo 來台定居的香港友人好客 健談 親切 樂情喜好台灣的環境這是他們在這落腳的主要原因 由主理人 給予你一個全新的接觸層面講解含國語、英語及粵語 ,全方位學習 Trouble – 減少原有裝修 利用顏色及面材 Floor Plan - 1F & 2F next project CHENG GUODAY CARE_晟果托嬰中心