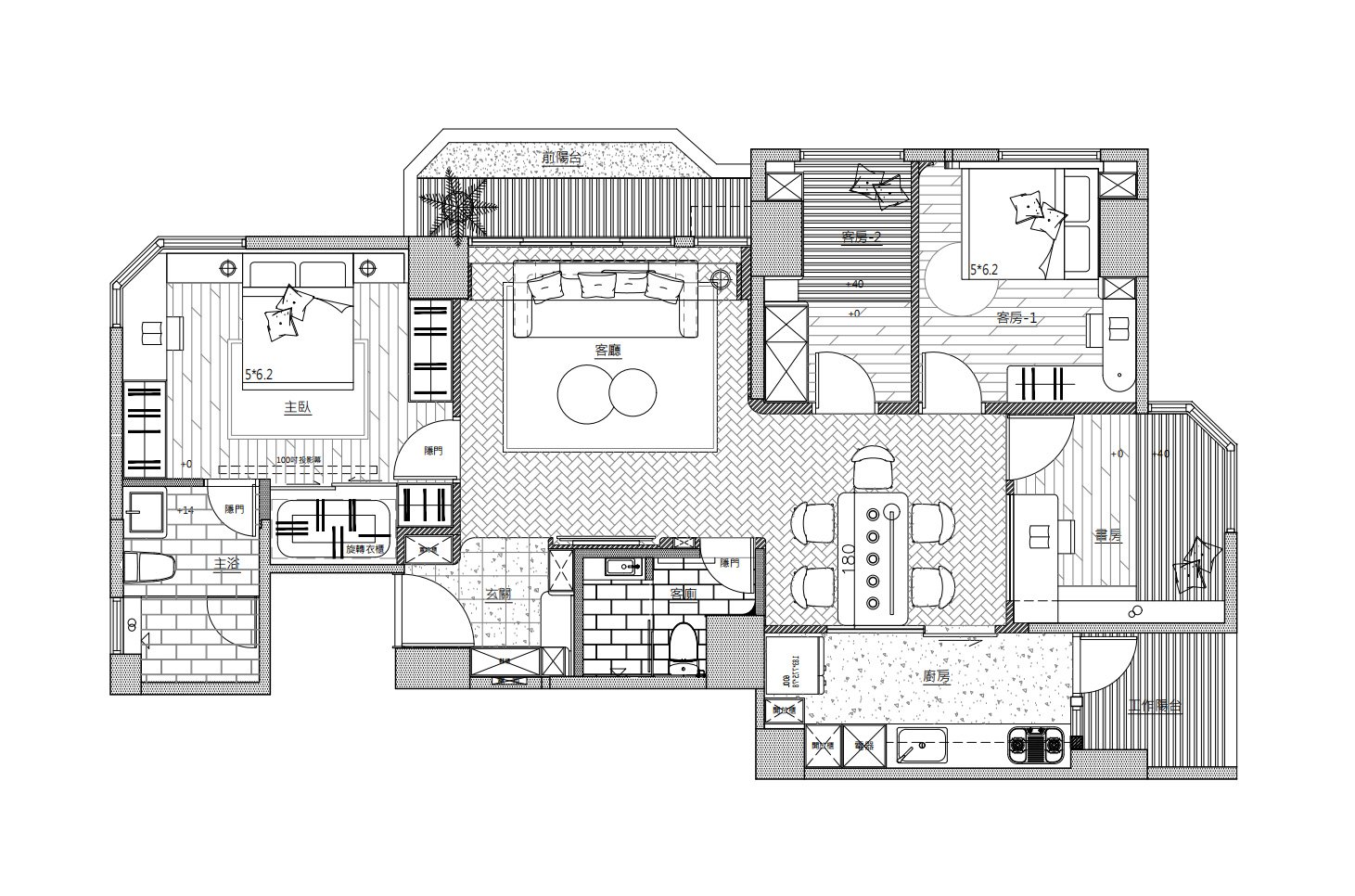
家宅 HOME home Type | Residential Built-up Size | 216m² / 65P Location | Taipei, Taiwan Photography | MD Motivo 長期在他鄉工作,倆夫妻成假日模式相處已久。希望在此落根,把生活喜好呈現在空間每個角落。處處都是顏色與比例的計較。義大利 Morandi 畫家就成為此案的設定軸心。顏色多數是低飽和度的藍灰黃。改變原有40年前原有建築的舊思維隔間。 Trouble – 隔間 . 顏色協調 . 管線 Floor Plan - Before & After next project Andy’s Music_小齊音樂